Warszawa, Śródmieście

Obiekt na wynajem

Szczegóły oferty

Warszawa, Śródmieście, rejon ul. Jana Pawła II, do wynajęcia powierzchnia biurowa. 

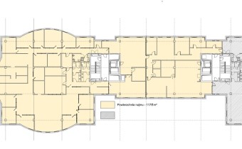
Dostępne powierzchnie: na piętrze pierwszym 1175 mkw.

Dodatkowo dostępne są powierzchnie magazynowe oraz podziemny parking przeznaczony wyłącznie dla najemców oraz ich gości.

Budynek posiada dedykowane miejsca dla rowerzystów i motocyklistów.

Oferowana powierzchnia może być wynajęta jako open space lub w formie oddzielnych gabinetów.

Standard powierzchni:
• Podniesione podłogi
• Klimatyzacja
• Kontrola dostępu
• Recepcja
• Duża wysokość pomieszczeń
• CCTV
• Powierzchnia magazynowa dostępna na poziomie parkingu
• Otwierane okna

Cztery windy i dwie klatki schodowe umożliwiają dogodne dotarcie do każdego piętra.
Budynek posiada recepcję oraz ochronę, a także obszerny hol na parterze budynku.

Najem powierzchni biurowej 15,5  Euro/mkw. Dodatkowo płatne koszty eksploatacyjne 25,50 zł/mkw.
Powierzchnia wspólna 7,5%.

Koszt najmu miejsca garażowego 110 Euro/miejsce.

Powierzchnia do adaptacji, remontu pod przyszłego najemcę. 


 

Nota prawna

Opis oferty zawarty na stronie internetowej sporządzany jest na podstawie oględzin nieruchomości oraz informacji uzyskanych od właściciela, może podlegać aktualizacji i nie stanowi oferty określonej w art. 66 i następnych K.C.
Symbol oferty BW-14346
Powierzchnia 1 175,00 m²
Rodzaj obiektu biurowiec

Podobne oferty

obiekt na wynajem - Warszawa, Praga-Północ, Praga

obiekt na wynajem

Warszawa, Praga-Północ, Praga
  973,00 m2 72,71 zł/m2
obiekt na wynajem - Warszawa, Śródmieście

obiekt na wynajem

Warszawa, Śródmieście
  713,80 m2 75,00 zł/m2
obiekt na wynajem - Warszawa, Śródmieście

obiekt na wynajem

Warszawa, Śródmieście
  1 293,00 m2 64,00 zł/m2
obiekt na wynajem - Warszawa, Mokotów

obiekt na wynajem

Warszawa, Mokotów
  1 500,00 m2 65,00 zł/m2

Napisz do nas

Proszę wypełnić to pole
Proszę wypełnić to pole
Proszę wypełnić to pole
Proszę wypełnić to pole
Trwa wysyłanie...

Ta strona wykorzystuje pliki cookies w celach statystycznych oraz w celu dostosowania naszych serwisów do indywidualnych potrzeb klientów. Zmiany ustawień dotyczących plików cookie można dokonać w dowolnej chwili modyfikując ustawienia przeglądarki. Korzystanie z tej strony bez zmian ustawień dotyczących cookies oznacza, że będą one zapisane w pamięci urządzenia.

rozumiem