Warszawa, Praga-Południe

Obiekt na wynajem

Szczegóły oferty

Warszawa, Praga Południe, do wynajęcia nowoczesna powierzchnia biurowa. 

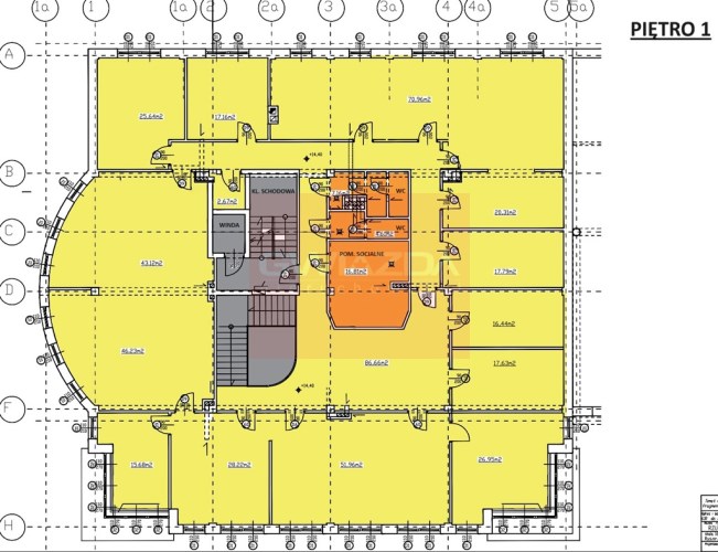
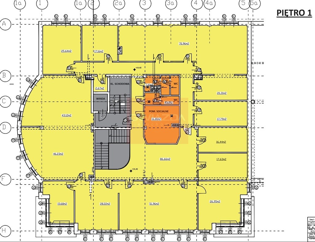
Dostępna powierzchnia biurowa na pierwszym piętrze 516 mkw., z możliwością podziału na mniejsze moduły.

W standardzie wykończenia znajdują się: klimatyzacja, uchylne okna, elektroniczna kontrola dostępu, podnoszone podłogi, podwieszane sufity, kable światłowodowe, tryskacze, czujniki dymu, system BMS. 

Czynsz najmu 56 zł netto/mkw., plus koszty eksploatacji 22 zł netto/mkw. plus energia elektryczna na podstawie podlicznika. 
Współczynnik powierzchni wspólnych 
6%. 

Miejsca parkingowe w cenie 280 zł netto/ miesiąc. Ilość miejsc parkingowych do ustalenia.

Nota prawna

Opis oferty zawarty na stronie internetowej sporządzany jest na podstawie oględzin nieruchomości oraz informacji uzyskanych od właściciela, może podlegać aktualizacji i nie stanowi oferty określonej w art. 66 i następnych K.C.
Symbol oferty BW-14235
Powierzchnia 516,00 m²
Rodzaj obiektu biurowiec

Podobne oferty

obiekt na wynajem - Warszawa, Wola, Młynów

obiekt na wynajem

Warszawa, Wola, Młynów
  500,00 m2 55,00 zł/m2
obiekt na wynajem - Warszawa, Śródmieście

obiekt na wynajem

Warszawa, Śródmieście
  332,00 m2 69,00 zł/m2
obiekt na wynajem - Warszawa, Wola, Młynów

obiekt na wynajem

Warszawa, Wola, Młynów
  550,00 m2 60,00 zł/m2
obiekt na wynajem - Warszawa, Mokotów, Dolny Mokotów

obiekt na wynajem

Warszawa, Mokotów, Dolny Mokotów
  350,00 m2 58,00 zł/m2

Napisz do nas

Proszę wypełnić to pole
Proszę wypełnić to pole
Proszę wypełnić to pole
Proszę wypełnić to pole
Trwa wysyłanie...

Ta strona wykorzystuje pliki cookies w celach statystycznych oraz w celu dostosowania naszych serwisów do indywidualnych potrzeb klientów. Zmiany ustawień dotyczących plików cookie można dokonać w dowolnej chwili modyfikując ustawienia przeglądarki. Korzystanie z tej strony bez zmian ustawień dotyczących cookies oznacza, że będą one zapisane w pamięci urządzenia.

rozumiem