Warszawa, Śródmieście

Obiekt na wynajem

Szczegóły oferty

Warszawa, Śródmieście, rejon Dworca Centralnego.

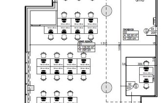
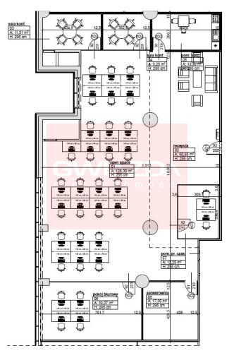
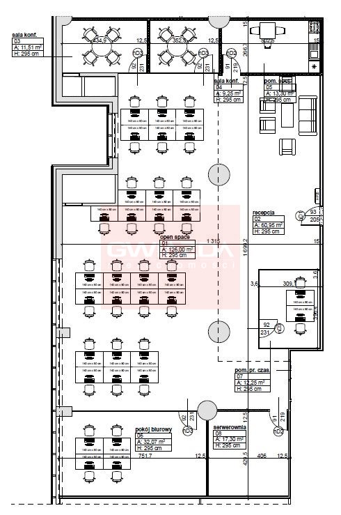
Do wynajęcia powierzchnia biurowa 290 mkw. na piętrze dziesiątym z ładnym widokiem na Warszawę.


Aktualny układ biura, jak na załączonym planie. Łazienki w części wspólnej. 

Do dyspozycji najemcy: klimatyzacja, okablowanie, podnoszona podłoga, podwieszane sufity, BMS, kontrola dostępu, światłowód, tryskacze.

Koszt najmu wywoławczo 17 Euro/mkw. plus koszty eksploatacji 30 zł/mkw. zaliczkowo plus powierzchnia wspólna ok. 6-10 % (współczynnik zależny od wielkości wynajętej powierzchni.)

Koszt miejsca parkingowego podziemnego: 150 euro/m-c, miejsce naziemne: 90 euro/m-c.

Warunki najmu do negocjacji.

 

Nota prawna

Opis oferty zawarty na stronie internetowej sporządzany jest na podstawie oględzin nieruchomości oraz informacji uzyskanych od właściciela, może podlegać aktualizacji i nie stanowi oferty określonej w art. 66 i następnych K.C.
Symbol oferty BW-14581
Powierzchnia 290,00 m²

Podobne oferty

obiekt na wynajem - Warszawa, Wola, Młynów

obiekt na wynajem

Warszawa, Wola, Młynów
  400,00 m2 50,00 zł/m2
obiekt na wynajem - Warszawa, Mokotów

obiekt na wynajem

Warszawa, Mokotów
  264,00 m2 58,00 zł/m2
obiekt na wynajem - Warszawa, Mokotów, Dolny Mokotów

obiekt na wynajem

Warszawa, Mokotów, Dolny Mokotów
  350,00 m2 58,00 zł/m2
obiekt na wynajem - Warszawa, Śródmieście

obiekt na wynajem

Warszawa, Śródmieście
  324,00 m2 67,00 zł/m2

Napisz do nas

Proszę wypełnić to pole
Proszę wypełnić to pole
Proszę wypełnić to pole
Proszę wypełnić to pole
Trwa wysyłanie...

Ta strona wykorzystuje pliki cookies w celach statystycznych oraz w celu dostosowania naszych serwisów do indywidualnych potrzeb klientów. Zmiany ustawień dotyczących plików cookie można dokonać w dowolnej chwili modyfikując ustawienia przeglądarki. Korzystanie z tej strony bez zmian ustawień dotyczących cookies oznacza, że będą one zapisane w pamięci urządzenia.

rozumiem