Warszawa, Śródmieście

Obiekt na wynajem

Szczegóły oferty

Stylowe biuro do wynajęcia, rejon metra Politechnika, Pl. Konstytucji.

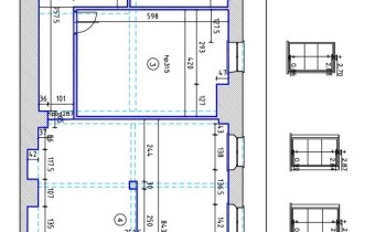
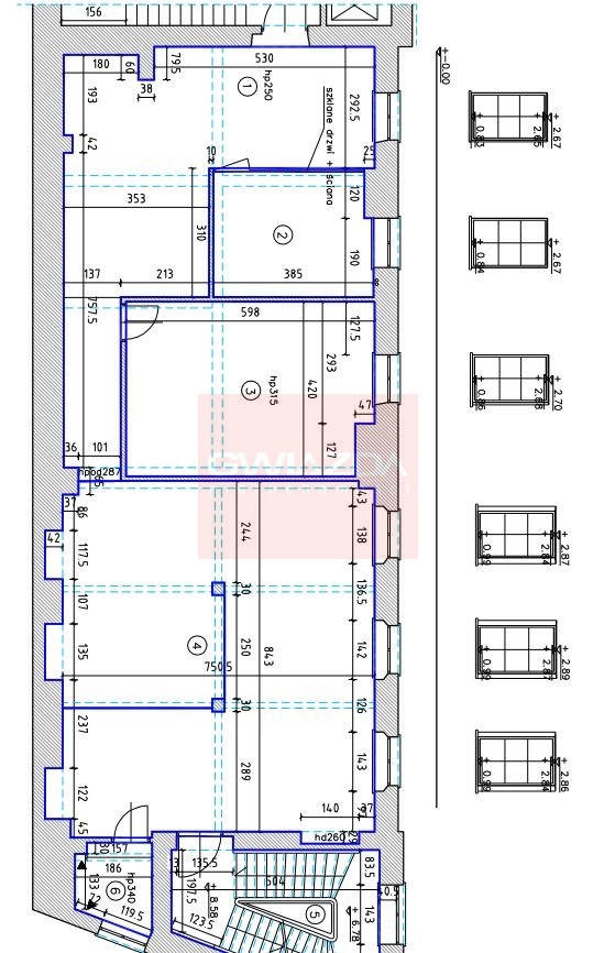
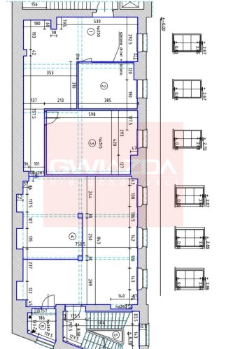
Do wynajęcia lokal biurowy o powierzchni 142 mkw., dwa gabinety (jeden przeszklony) plus otwarta przestrzeń oraz aneks kuchenny, toaleta. Istnieje możliwość dobudowania dodatkowego pomieszczenia.
Lokal znajduje się na drugim piętrze.

Oferowany lokal znajduje się w odrestaurowanej kamienicy o charakterze biurowym w centrum miasta.

Powierzchnia biurowa zostanie wykończona w bardzo wysokim standardzie. Posiada okablowanie strukturalne, stałe łącze internetowe, klimatyzację.

Podłoga zostanie ułożona po uzgodnieniu z Najemcą.


Możliwość wynajęcia miejsc parkingowych: 1 miejsce na terenie posesji w cenie 450 zł. oraz miejsca parkingowe na parkingu podziemnym (oddalony o ok. 300 m) w cenie 488 zł. (miejsce całodobowe) i 264 zł. (abonament w godz. 7.00 – 19.00).

W budynku funkcjonuje całodobowa portiernia.

Koszt najmu lokalu 100 zł/mkw. plus koszty eksploatacyjne ok. 27 zł/mkw. oraz energia elektryczna, internet.


 

Nota prawna

Opis oferty zawarty na stronie internetowej sporządzany jest na podstawie oględzin nieruchomości oraz informacji uzyskanych od właściciela, może podlegać aktualizacji i nie stanowi oferty określonej w art. 66 i następnych K.C.
Symbol oferty BW-14507
Powierzchnia 142,00 m²

Podobne oferty

obiekt na wynajem - Warszawa, Wola, Młynów

obiekt na wynajem

Warszawa, Wola, Młynów
  400,00 m2 50,00 zł/m2
obiekt na wynajem - Warszawa, Włochy, Salomea

obiekt na wynajem

Warszawa, Włochy, Salomea
  485,00 m2 25,00 zł/m2
obiekt na wynajem - Warszawa, Mokotów

obiekt na wynajem

Warszawa, Mokotów
  340,00 m2 40,00 zł/m2
obiekt na wynajem - Warszawa, Mokotów

obiekt na wynajem

Warszawa, Mokotów
  264,00 m2 58,00 zł/m2

Napisz do nas

Proszę wypełnić to pole
Proszę wypełnić to pole
Proszę wypełnić to pole
Proszę wypełnić to pole
Trwa wysyłanie...

Ta strona wykorzystuje pliki cookies w celach statystycznych oraz w celu dostosowania naszych serwisów do indywidualnych potrzeb klientów. Zmiany ustawień dotyczących plików cookie można dokonać w dowolnej chwili modyfikując ustawienia przeglądarki. Korzystanie z tej strony bez zmian ustawień dotyczących cookies oznacza, że będą one zapisane w pamięci urządzenia.

rozumiem