Warszawa, Ochota

Obiekt na wynajem

Szczegóły oferty

Al. Jerozolimskie, rejon Pl. Zawiszy. 

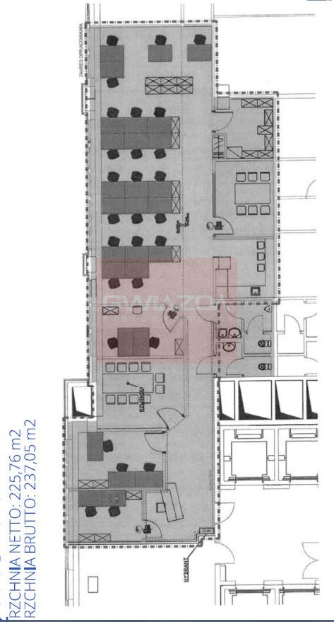
Dostępny  moduł 215 mkw. netto, a 225 brutto na piętrze czternastym.

W standardzie podwieszane sufity, kontrola dostępu, klimatyzacja. W budynku kantyna, dobre połączenie komunikacją miejską. 

Aktualny układ biura jest widoczny na planie w ofercie.  Możliwy dodatkowy podział lub otworzenie powierzchni.

Koszt najmu biura 14,75 - 15,50 Euro/mkw. plus koszty eksploatacyjne 30 zł/mkw., media w lokalu wg liczników. 

Powierzchnia wspólna 6%.

Koszt miejsca parkingowego  100 Euro/m-c.
Współczynnik miejsc parkingowych 1/51 mkw. biura.

Nota prawna

Opis oferty zawarty na stronie internetowej sporządzany jest na podstawie oględzin nieruchomości oraz informacji uzyskanych od właściciela, może podlegać aktualizacji i nie stanowi oferty określonej w art. 66 i następnych K.C.
Symbol oferty BW-14366
Powierzchnia 215,00 m²
Własny parking tak

Lokalizacja

Podobne oferty

obiekt na wynajem - Warszawa, Włochy, Salomea

obiekt na wynajem

Warszawa, Włochy, Salomea
  485,00 m2 25,00 zł/m2
obiekt na wynajem - Warszawa, Mokotów

obiekt na wynajem

Warszawa, Mokotów
  340,00 m2 40,00 zł/m2
obiekt na wynajem - Warszawa, Mokotów

obiekt na wynajem

Warszawa, Mokotów
  264,00 m2 58,00 zł/m2
obiekt na wynajem - Warszawa, Wola

obiekt na wynajem

Warszawa, Wola
  265,00 m2 30,00 zł/m2

Napisz do nas

Proszę wypełnić to pole
Proszę wypełnić to pole
Proszę wypełnić to pole
Proszę wypełnić to pole
Trwa wysyłanie...

Ta strona wykorzystuje pliki cookies w celach statystycznych oraz w celu dostosowania naszych serwisów do indywidualnych potrzeb klientów. Zmiany ustawień dotyczących plików cookie można dokonać w dowolnej chwili modyfikując ustawienia przeglądarki. Korzystanie z tej strony bez zmian ustawień dotyczących cookies oznacza, że będą one zapisane w pamięci urządzenia.

rozumiem