Warszawa, Ochota

Obiekt na wynajem

Szczegóły oferty

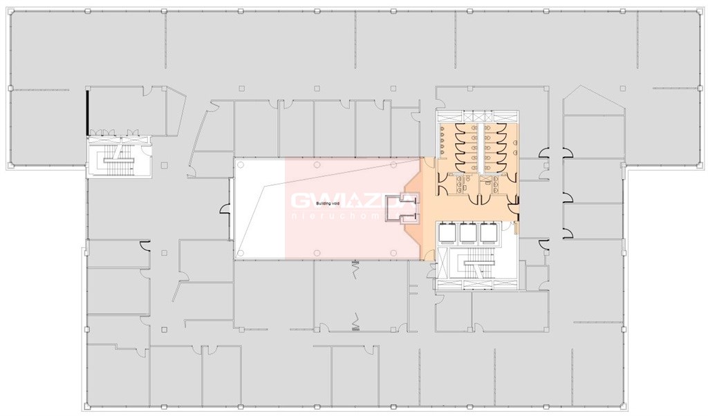
Ochota, do wynajęcia powierzchnia biurowa 2145 mkw. netto, 2239 mkw. brutto z możliwością wydzielenia mniejszych modułów.

Obecny podział pomieszczeń jest widoczny na planie w tej ofercie, układ mieszany - otwarta przestrzeń oraz wydzielone przeszklone gabinety, sale konferencyjne oraz część socjalna i toalety.

Wysokość pomieszczeń do stropu ponad 3m, podłoga techniczna.

Nośność posadzki 500 kg/mkw.

Wysokość czynszu 14,50 Euro/mkw. opłaty eksploatacyjne 28 zł/mkw. oraz energia elektryczna.

Przewidziane są obniżki czynszu w formie wakacji czynszowych oraz budżet na fit out powierzchni (do ustalenia).



 

Nota prawna

Opis oferty zawarty na stronie internetowej sporządzany jest na podstawie oględzin nieruchomości oraz informacji uzyskanych od właściciela, może podlegać aktualizacji i nie stanowi oferty określonej w art. 66 i następnych K.C.
Symbol oferty BW-14554
Powierzchnia 2 100,00 m²

Podobne oferty

obiekt na wynajem - Warszawa, Wola

obiekt na wynajem

Warszawa, Wola
  1 540,00 m2 66,30 zł/m2
obiekt na wynajem - Warszawa, Śródmieście

obiekt na wynajem

Warszawa, Śródmieście
  2 234,00 m2 77,00 zł/m2
obiekt na wynajem - Warszawa, Śródmieście

obiekt na wynajem

Warszawa, Śródmieście
  1 300,00 m2 109,00 zł/m2
obiekt na wynajem - Warszawa, Śródmieście

obiekt na wynajem

Warszawa, Śródmieście
  1 713,00 m2 81,00 zł/m2

Napisz do nas

Proszę wypełnić to pole
Proszę wypełnić to pole
Proszę wypełnić to pole
Proszę wypełnić to pole
Trwa wysyłanie...

Ta strona wykorzystuje pliki cookies w celach statystycznych oraz w celu dostosowania naszych serwisów do indywidualnych potrzeb klientów. Zmiany ustawień dotyczących plików cookie można dokonać w dowolnej chwili modyfikując ustawienia przeglądarki. Korzystanie z tej strony bez zmian ustawień dotyczących cookies oznacza, że będą one zapisane w pamięci urządzenia.

rozumiem