Warszawa, Śródmieście

Obiekt na wynajem

Szczegóły oferty

Warszawa, Centrum, rejon Złote Tarasy, metro Rondo ONZ.


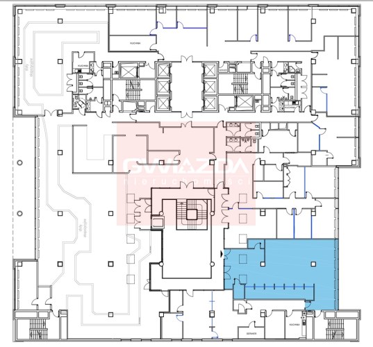
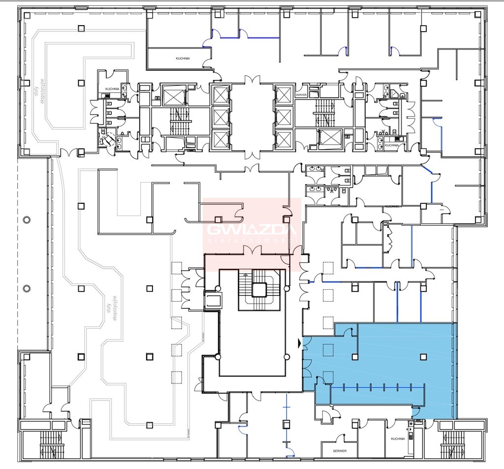
Nowoczesny budynek biurowy, oferuje samodzielną powierzchnię na piętrze pierwszym 179 mkw.

Wysoki standard powierzchni m.in. klimatyzacja, podwieszany sufit, podnoszona podłoga, otwierane okna, kontrola dostępu, wykładzina, czujniki dymu i ognia, tryskacze, światłowód, okablowanie elektryczne, centrala telefoniczna, okablowanie IT, żaluzje, system zarządzania budynkiem, monitoring i ochrona. Udogodnienia: centrum konferencyjne, restauracja, kawiarnia, piekarnia, parking dla gości, myjnia samochodowa.

Obiekt jest dobrze skomunikowany ze wszystkimi częściami miasta. Lokalizacja zapewnia łatwy i dogodny dostęp do wszystkich środków transportu miejskiego ( pociągi, metro, linie autobusowe i tramwajowe).

Koszt najmu wywoławczo: 17 EURO/mkw., właściciel oferuje zwolnienia z czynszu i inne zachęty dla najemców. 

Koszty eksploatacyjne: 26,40 zł/mkw.

Powierzchnia wspólna: 3,7%.

Koszt miejsca parkingowego w garażu: 200 EURO/miejsce/miesiąc. Współczynnik miejsc parkingowych: 1:120. 

Zdjęcia pokazują standard biur w budynku.

Nota prawna

Opis oferty zawarty na stronie internetowej sporządzany jest na podstawie oględzin nieruchomości oraz informacji uzyskanych od właściciela, może podlegać aktualizacji i nie stanowi oferty określonej w art. 66 i następnych K.C.
Symbol oferty BW-14500
Powierzchnia 179,00 m²
Liczba wind 9

Lokalizacja

Podobne oferty

obiekt na wynajem - Warszawa, Włochy, Salomea

obiekt na wynajem

Warszawa, Włochy, Salomea
  485,00 m2 25,00 zł/m2
obiekt na wynajem - Warszawa, Mokotów

obiekt na wynajem

Warszawa, Mokotów
  340,00 m2 40,00 zł/m2
obiekt na wynajem - Warszawa, Mokotów

obiekt na wynajem

Warszawa, Mokotów
  264,00 m2 58,00 zł/m2
obiekt na wynajem - Warszawa, Wola

obiekt na wynajem

Warszawa, Wola
  265,00 m2 30,00 zł/m2

Napisz do nas

Proszę wypełnić to pole
Proszę wypełnić to pole
Proszę wypełnić to pole
Proszę wypełnić to pole
Trwa wysyłanie...

Ta strona wykorzystuje pliki cookies w celach statystycznych oraz w celu dostosowania naszych serwisów do indywidualnych potrzeb klientów. Zmiany ustawień dotyczących plików cookie można dokonać w dowolnej chwili modyfikując ustawienia przeglądarki. Korzystanie z tej strony bez zmian ustawień dotyczących cookies oznacza, że będą one zapisane w pamięci urządzenia.

rozumiem