Warszawa, Wola

Obiekt na wynajem

Szczegóły oferty


Warszawa, Wola, do wynajęcia nowoczesna powierzchnia biurowa.

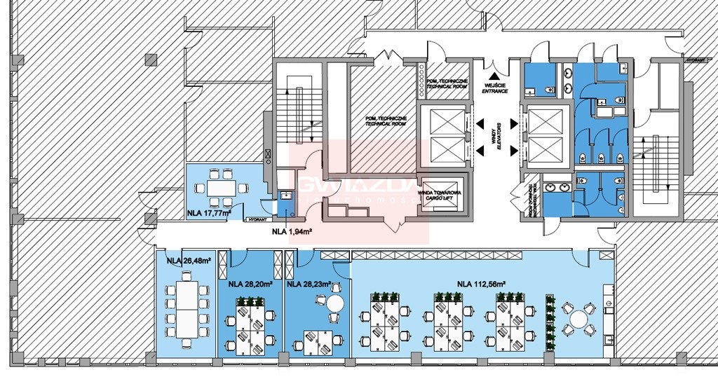
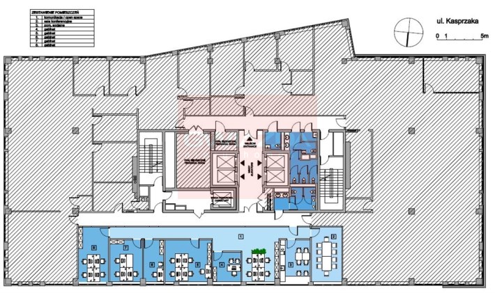
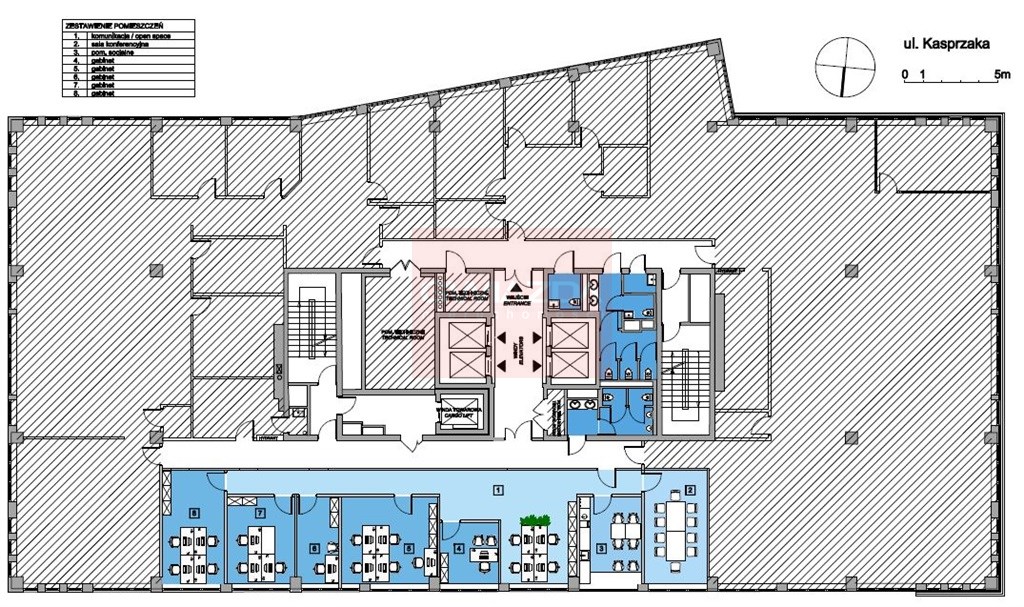
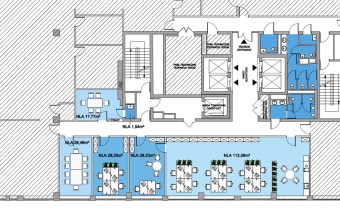
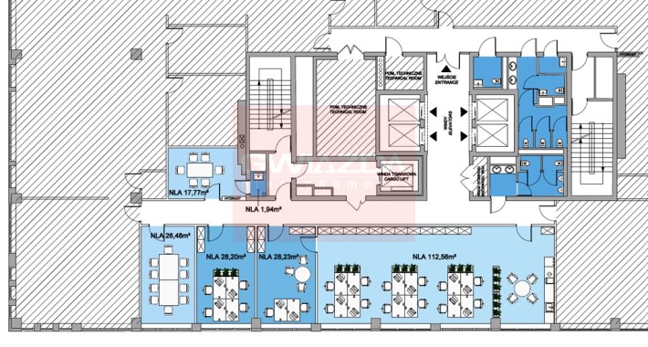
Dostępna powierzchnia biurowa 195 mkw. na piętrze czwartym oraz inne moduły.

Budynek jest bardzo dobrze skomunikowany z centrum miasta.
Obok budynku znajdują się przystanki autobusowe i tramwajowe.

Metro Rondo Daszyńskiego 12 minut pieszo, stacja Płocka 3 minuty, łatwy dostęp do obwodnicy S8.


Standard powierzchni biurowej: 
podnoszone podłogi, klimatyzacja, sieć komputerowa,
tryskacze, czujki dymu i ognia, uchylne okna,
dwustronne zasilanie, całodobowa ochrona, kontrola dostępu, kable światłowodowe, kantyna.
Dostęp do windy towarowej.
Wysokość pomieszczeń 2,70 m.


Standard biurowy B+, budynek został odnowiony i zmodernizowany.

Koszt najmu 14,25 Euro/mkw., eksploatacja 27 zł/mkw., powierzchnia wspólna 7 %.

Współczynnik miejsc parkingowych 1:70, koszt miejsca parkingowego 100 Euro.

Bardzo atrakcyjne warunki najmu, właściciel oferuje zwolnienia z czynszu i budżet na aranżację biura. 



 

Nota prawna

Opis oferty zawarty na stronie internetowej sporządzany jest na podstawie oględzin nieruchomości oraz informacji uzyskanych od właściciela, może podlegać aktualizacji i nie stanowi oferty określonej w art. 66 i następnych K.C.
Symbol oferty BW-14504
Powierzchnia 195,00 m²
Rodzaj obiektu biurowiec
Własny parking tak

Podobne oferty

obiekt na wynajem - Warszawa, Włochy, Salomea

obiekt na wynajem

Warszawa, Włochy, Salomea
  485,00 m2 25,00 zł/m2
obiekt na wynajem - Warszawa, Mokotów

obiekt na wynajem

Warszawa, Mokotów
  340,00 m2 40,00 zł/m2
obiekt na wynajem - Warszawa, Mokotów

obiekt na wynajem

Warszawa, Mokotów
  264,00 m2 58,00 zł/m2
obiekt na wynajem - Warszawa, Wola

obiekt na wynajem

Warszawa, Wola
  265,00 m2 30,00 zł/m2

Napisz do nas

Proszę wypełnić to pole
Proszę wypełnić to pole
Proszę wypełnić to pole
Proszę wypełnić to pole
Trwa wysyłanie...

Ta strona wykorzystuje pliki cookies w celach statystycznych oraz w celu dostosowania naszych serwisów do indywidualnych potrzeb klientów. Zmiany ustawień dotyczących plików cookie można dokonać w dowolnej chwili modyfikując ustawienia przeglądarki. Korzystanie z tej strony bez zmian ustawień dotyczących cookies oznacza, że będą one zapisane w pamięci urządzenia.

rozumiem