Warszawa, Wola, Młynów

Obiekt na wynajem

Szczegóły oferty

Wola, Rejon ul. Wolskiej.

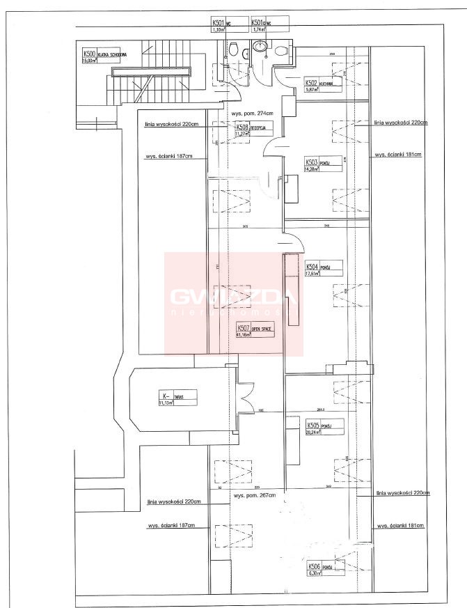
do wynajęcia powierzchnia biurowa 136 mkw. na piątym, ostatnim piętrze w kamienicy biurowej wyposażonej w windę.


Kamienica biurowa o wysokim standardzie wykończenia.

W standardzie: okablowanie informatyczne, klimatyzacja, podwieszane sufity, wentylacja, recepcja.


Lokal składa się z kilku gabinetów oraz większej przestrzeni otwartej, serwerowni, aneksu kuchennego i toalety.

Koszt najmu wywoławczo 14  Euro/mkw. + 5 Euro/mkw. koszty eksploatacyjne, dodatkowo płatna energia elektryczna.

Miejsce parkingowe naziemne w cenie 70 Euro/m-c netto.

 

Nota prawna

Opis oferty zawarty na stronie internetowej sporządzany jest na podstawie oględzin nieruchomości oraz informacji uzyskanych od właściciela, może podlegać aktualizacji i nie stanowi oferty określonej w art. 66 i następnych K.C.
Symbol oferty BW-14523
Powierzchnia 136,00 m²

Podobne oferty

obiekt na wynajem - Warszawa, Śródmieście

obiekt na wynajem

Warszawa, Śródmieście
  110,00 m2 71,00 zł/m2
obiekt na wynajem - Warszawa, Mokotów

obiekt na wynajem

Warszawa, Mokotów
  130,00 m2 45,00 zł/m2
obiekt na wynajem - Warszawa, Mokotów

obiekt na wynajem

Warszawa, Mokotów
  100,00 m2 58,00 zł/m2
obiekt na wynajem - Warszawa, Mokotów

obiekt na wynajem

Warszawa, Mokotów
  131,00 m2 54,00 zł/m2

Napisz do nas

Proszę wypełnić to pole
Proszę wypełnić to pole
Proszę wypełnić to pole
Proszę wypełnić to pole
Trwa wysyłanie...

Ta strona wykorzystuje pliki cookies w celach statystycznych oraz w celu dostosowania naszych serwisów do indywidualnych potrzeb klientów. Zmiany ustawień dotyczących plików cookie można dokonać w dowolnej chwili modyfikując ustawienia przeglądarki. Korzystanie z tej strony bez zmian ustawień dotyczących cookies oznacza, że będą one zapisane w pamięci urządzenia.

rozumiem