Warszawa, Ochota

Obiekt na wynajem

Szczegóły oferty

Warszawa, Ochota, do wynajęcia powierzchnia po laboratorium.

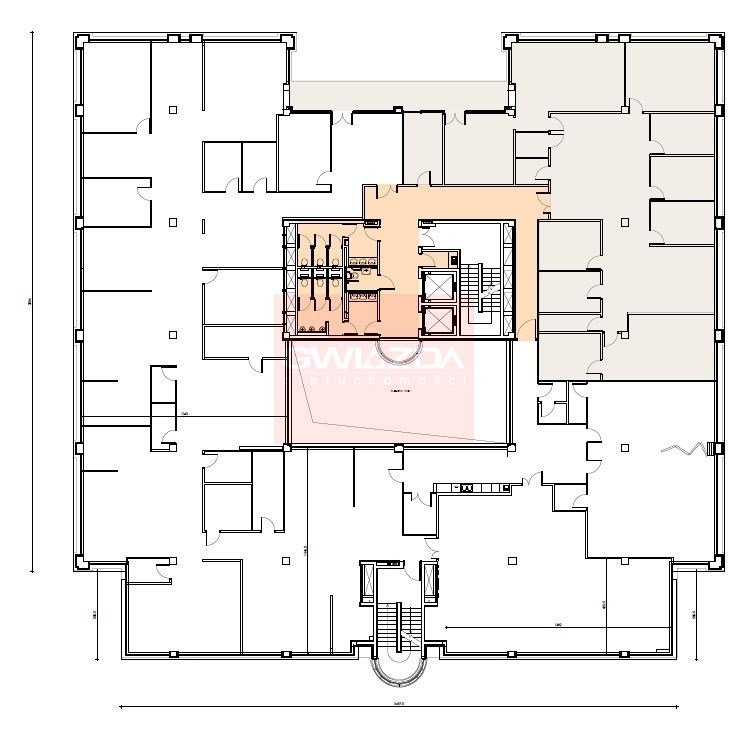
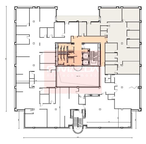
Oferowana powierzchnia, 950 mkw., znajduje się w budynku biurowym na trzecim piętrze, z możliwością wydzielenia mniejszych modułów.

Obecny podział pomieszczeń jest widoczny na planie w tej ofercie, układ mieszany - otwarta przestrzeń oraz wydzielone przeszklone gabinety, sale konferencyjne oraz część socjalna i toalety.

Powierzchnia jest przystosowana do prowadzenia działalności typu laboratorium.

Wysokość pomieszczeń do stropu ponad 3m, podłoga techniczna.

Nośność posadzki 500 kg/mkw.

Wysokość czynszu 14,50 Euro/mkw. opłaty eksploatacyjne 28 zł/mkw. oraz energia elektryczna.

Przewidziane są obniżki czynszu w formie wakacji czynszowych oraz budżet na fit out powierzchni (do ustalenia).

Miejsca parkingowe w garażu podziemnym.



 

Nota prawna

Opis oferty zawarty na stronie internetowej sporządzany jest na podstawie oględzin nieruchomości oraz informacji uzyskanych od właściciela, może podlegać aktualizacji i nie stanowi oferty określonej w art. 66 i następnych K.C.
Symbol oferty BW-14568
Powierzchnia 950,00 m²

Podobne oferty

obiekt na wynajem - Warszawa, Śródmieście

obiekt na wynajem

Warszawa, Śródmieście
  713,80 m2 75,00 zł/m2
obiekt na wynajem - Warszawa, Śródmieście

obiekt na wynajem

Warszawa, Śródmieście
  1 293,00 m2 64,00 zł/m2
obiekt na wynajem - Warszawa, Ochota

obiekt na wynajem

Warszawa, Ochota
  967,00 m2 63,00 zł/m2
obiekt na wynajem - Warszawa, Wola

obiekt na wynajem

Warszawa, Wola
  702,00 m2 67,00 zł/m2

Napisz do nas

Proszę wypełnić to pole
Proszę wypełnić to pole
Proszę wypełnić to pole
Proszę wypełnić to pole
Trwa wysyłanie...

Ta strona wykorzystuje pliki cookies w celach statystycznych oraz w celu dostosowania naszych serwisów do indywidualnych potrzeb klientów. Zmiany ustawień dotyczących plików cookie można dokonać w dowolnej chwili modyfikując ustawienia przeglądarki. Korzystanie z tej strony bez zmian ustawień dotyczących cookies oznacza, że będą one zapisane w pamięci urządzenia.

rozumiem