Warszawa, Mokotów

Obiekt na wynajem

Szczegóły oferty


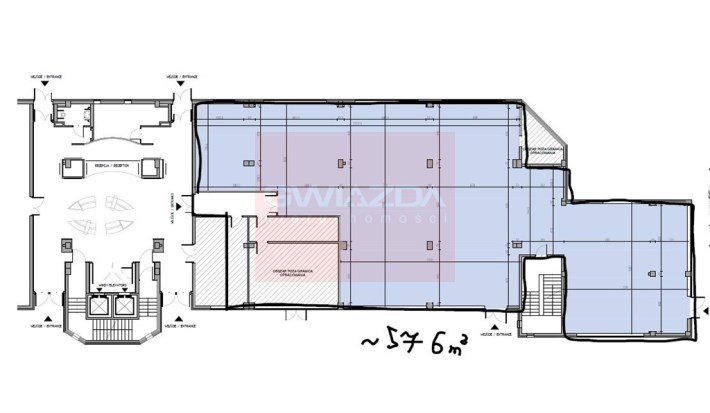
Warszawa, Mokotów, rejon ul. Postępu, parter w budynku biurowym.


Dostępny jest moduł na parterze 576 mkw., lokal w stanie shell&core.

Lokal posiada niezależnie wejścia z ulicy.
Przy budynku jest mały plac zabaw, ogólnie dostępny. 

Wysokość lokalu na parterze 4,24 m.
Duża nośność stropu - 6-10 kN/mkw.


Powierzchnia w różnym stanie, generalnie do aranżacji pod klienta.
W budynku znajdują się również wolne typowe powierzchnie biurowe na piętrach.

Właściciel oferuje budżet na aranżację (150 Euro/mkw. przy umowie 5 letniej; 250 Euro/mkw. przy umowie 7 letniej) i zwolnienia z czynszu zależne od długości najmu.


Koszt najmu 15 Euro/mkw.,dla umowy 5 letniej;  14,50 Euro/mkw. dla umowy min. 7 letniej plus eksploatacja 31 zł/mkw. oraz energia elektryczna.

Powierzchnia wspólna 5%.

Koszt parkingu 75 Euro/miejsce.







 

Nota prawna

Opis oferty zawarty na stronie internetowej sporządzany jest na podstawie oględzin nieruchomości oraz informacji uzyskanych od właściciela, może podlegać aktualizacji i nie stanowi oferty określonej w art. 66 i następnych K.C.
Symbol oferty BW-13658
Powierzchnia 576,00 m²

Podobne oferty

obiekt na wynajem - Warszawa, Wola, Młynów

obiekt na wynajem

Warszawa, Wola, Młynów
  550,00 m2 60,00 zł/m2
obiekt na wynajem - Warszawa, Ochota

obiekt na wynajem

Warszawa, Ochota
  475,00 m2 63,00 zł/m2
obiekt na wynajem - Warszawa, Śródmieście

obiekt na wynajem

Warszawa, Śródmieście
  450,00 m2 77,00 zł/m2
obiekt na wynajem - Warszawa, Śródmieście

obiekt na wynajem

Warszawa, Śródmieście
  509,00 m2 92,00 zł/m2

Napisz do nas

Proszę wypełnić to pole
Proszę wypełnić to pole
Proszę wypełnić to pole
Proszę wypełnić to pole
Trwa wysyłanie...

Ta strona wykorzystuje pliki cookies w celach statystycznych oraz w celu dostosowania naszych serwisów do indywidualnych potrzeb klientów. Zmiany ustawień dotyczących plików cookie można dokonać w dowolnej chwili modyfikując ustawienia przeglądarki. Korzystanie z tej strony bez zmian ustawień dotyczących cookies oznacza, że będą one zapisane w pamięci urządzenia.

rozumiem