Warszawa, Śródmieście

Obiekt na wynajem

Szczegóły oferty

Warszawa, Śródmieście, rejon Dworca Centralnego.

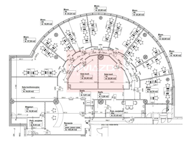
Do wynajęcia powierzchnia biurowa 478 mkw., w układzie gabinetowym z ładnym widokiem na Warszawę.

Aktualnie biuro jest podzielone na gabinety, z przeszkleniami. Obecnie jest osiem gabinetów, trzy sale konferencyjne, pomieszczenia socjalne, recepcja. Łazienki w części wspólnej. 

Do dyspozycji najemcy: klimatyzacja, okablowanie, podnoszona podłoga, podwieszane sufity, BMS, kontrola dostępu, światłowód, tryskacze.

Koszt najmu wywoławczo 16,50 Euro/mkw. plus koszty eksploatacji 30 zł/mkw. zaliczkowo plus powierzchnia wspólna ok. 6-10 % (współczynnik zależny od wielkości wynajętej powierzchni.)

Koszt miejsca parkingowego podziemnego: 150 euro/m-c, miejsce naziemne: 90 euro/m-c.

Warunki najmu do negocjacji.

 

Nota prawna

Opis oferty zawarty na stronie internetowej sporządzany jest na podstawie oględzin nieruchomości oraz informacji uzyskanych od właściciela, może podlegać aktualizacji i nie stanowi oferty określonej w art. 66 i następnych K.C.
Symbol oferty BW-14569
Powierzchnia 478,00 m²

Podobne oferty

obiekt na wynajem - Warszawa, Wola, Młynów

obiekt na wynajem

Warszawa, Wola, Młynów
  550,00 m2 60,00 zł/m2
obiekt na wynajem - Warszawa, Śródmieście

obiekt na wynajem

Warszawa, Śródmieście
  324,00 m2 67,00 zł/m2
obiekt na wynajem - Warszawa, Ochota

obiekt na wynajem

Warszawa, Ochota
  475,00 m2 63,00 zł/m2
obiekt na wynajem - Warszawa, Śródmieście

obiekt na wynajem

Warszawa, Śródmieście
  305,00 m2 73,00 zł/m2

Napisz do nas

Proszę wypełnić to pole
Proszę wypełnić to pole
Proszę wypełnić to pole
Proszę wypełnić to pole
Trwa wysyłanie...

Ta strona wykorzystuje pliki cookies w celach statystycznych oraz w celu dostosowania naszych serwisów do indywidualnych potrzeb klientów. Zmiany ustawień dotyczących plików cookie można dokonać w dowolnej chwili modyfikując ustawienia przeglądarki. Korzystanie z tej strony bez zmian ustawień dotyczących cookies oznacza, że będą one zapisane w pamięci urządzenia.

rozumiem