Warszawa, Żoliborz

Obiekt na wynajem

Szczegóły oferty


Warszawa, Żoliborz, do wynajęcia nowoczesna powierzchnia biurowa.

Oferowana powierzchnia znajduje się w nowoczesnym budynku w północnej części miasta. 

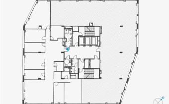
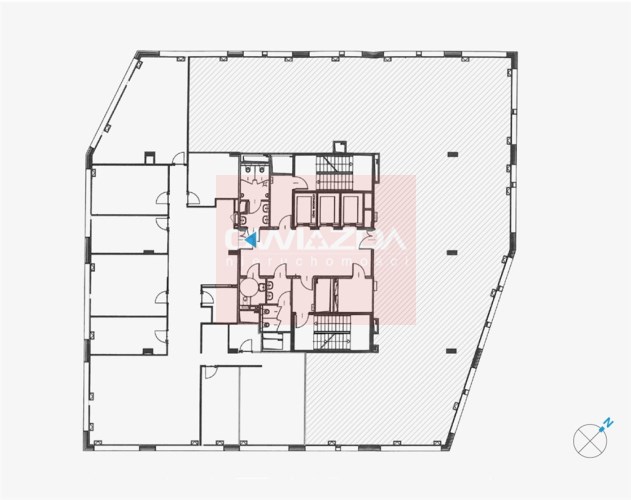
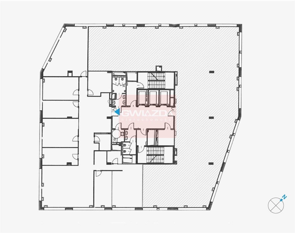
Budynek o powierzchni ponad 8000 mkw., powierzchnia typowego piętra około 852 mkw. 
Dostępne powierzchnie: 355 mkw. piętro czwarte oraz inne powierzchnie. 

Biurowiec wyróżnia się pionowymi, smukłymi elementami dekoracyjnymi nierównomiernie rozmieszczonymi na czarnej elewacji. Reprezentacyjna architektura i wysokość obiektu sprawiają, że jest on rozpoznawalny i dobrze wyeksponowany.

Budynek oferuje atrakcyjne powierzchnie biurowe i lokale handlowo – usługowe.

Wysoki standard wykończenia, zastosowanie proekologicznych rozwiązań, możliwość elastycznej aranżacji przestrzeni oraz znaczne przeszklenia i optymalny dostęp światła dziennego, zapewniają komfortowe warunki pracy. Na parterze znajduje się market spożywczy. Do dyspozycji najemców naziemne i podziemne miejsca parkingowe.

Biurowiec znajduje się blisko trasy ekspresowej S8. Lokalizacja umożliwia sprawny dojazd do innych części miasta zarówno transportem publicznym, jak i prywatnym.
W pobliżu przystanki autobusowe i stacja kolejowa Warszawa Powązki.

Koszt najmu biur 18 Euro/mkw. plus eksploatacja 28,77 zł/mkw., koszt miejsca parkingowego w garażu 120 Euro/miesięcznie.

Powierzchnia wspólna 10,37%.

Dostępność, luty 2026r.

Nota prawna

Opis oferty zawarty na stronie internetowej sporządzany jest na podstawie oględzin nieruchomości oraz informacji uzyskanych od właściciela, może podlegać aktualizacji i nie stanowi oferty określonej w art. 66 i następnych K.C.
Symbol oferty BW-14491
Powierzchnia 355,00 m²

Podobne oferty

obiekt na wynajem - Warszawa, Wola, Młynów

obiekt na wynajem

Warszawa, Wola, Młynów
  400,00 m2 50,00 zł/m2
obiekt na wynajem - Warszawa, Wola, Młynów

obiekt na wynajem

Warszawa, Wola, Młynów
  550,00 m2 60,00 zł/m2
obiekt na wynajem - Warszawa, Mokotów, Dolny Mokotów

obiekt na wynajem

Warszawa, Mokotów, Dolny Mokotów
  350,00 m2 58,00 zł/m2
obiekt na wynajem - Warszawa, Śródmieście

obiekt na wynajem

Warszawa, Śródmieście
  324,00 m2 67,00 zł/m2

Napisz do nas

Proszę wypełnić to pole
Proszę wypełnić to pole
Proszę wypełnić to pole
Proszę wypełnić to pole
Trwa wysyłanie...

Ta strona wykorzystuje pliki cookies w celach statystycznych oraz w celu dostosowania naszych serwisów do indywidualnych potrzeb klientów. Zmiany ustawień dotyczących plików cookie można dokonać w dowolnej chwili modyfikując ustawienia przeglądarki. Korzystanie z tej strony bez zmian ustawień dotyczących cookies oznacza, że będą one zapisane w pamięci urządzenia.

rozumiem