Warszawa, Śródmieście

Obiekt na wynajem

Szczegóły oferty

Warszawa, rejon metra Dworzec Gdański.

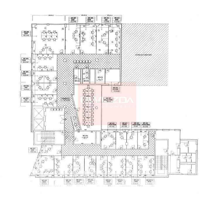
Do wynajęcia nowoczesna powierzchnia biurowa 713,8 mkw. na piętrze trzecim, dzielnica śródmieście, rejon ulicy Bonifraterskiej.

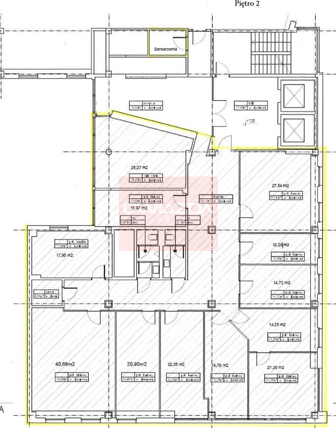
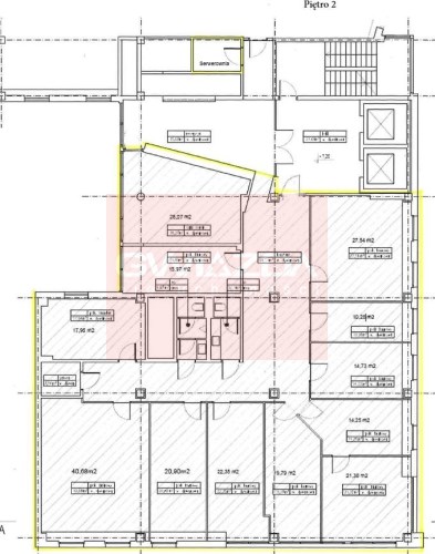
W tym samym budynku do wynajęcia także powierzchnia 360 mkw., na piętrze drugim.

Budynek biurowy w cichej okolicy, dobra komunikacja miejska.
Wysoki standard lokalu, duże okna, ułatwienia dla osób niepełnosprawnych.

Powierzchnia klimatyzowana, wyposażona w sieć strukturalną, ładny podział wewnętrzny powierzchni przy użyciu przeszklonych ścianek działowych i gipsowo kartonowych.
Możliwość dowolnej aranżacji biura.

W budynku znajduje się duża wyposażona sala konferencyjna z możliwością podziału na trzy mniejsze.
Budynek posiada również małą restaurację / bar dla pracowników.

Koszt najmu  75 zł/mkw. do negocjacji, plus koszty eksploatacji 35 zł/mkw.

Stanowisko w garażu podziemnym w cenie 500 zł za stanowisko/m-c, parking naziemny w cenie 300 zł miejsce/m-c.

Nota prawna

Opis oferty zawarty na stronie internetowej sporządzany jest na podstawie oględzin nieruchomości oraz informacji uzyskanych od właściciela, może podlegać aktualizacji i nie stanowi oferty określonej w art. 66 i następnych K.C.
Symbol oferty BW-14557
Powierzchnia 360,00 m²
Rodzaj obiektu biurowiec

Podobne oferty

obiekt na wynajem - Warszawa, Wola, Młynów

obiekt na wynajem

Warszawa, Wola, Młynów
  400,00 m2 50,00 zł/m2
obiekt na wynajem - Warszawa, Wola, Młynów

obiekt na wynajem

Warszawa, Wola, Młynów
  550,00 m2 60,00 zł/m2
obiekt na wynajem - Warszawa, Mokotów, Dolny Mokotów

obiekt na wynajem

Warszawa, Mokotów, Dolny Mokotów
  350,00 m2 58,00 zł/m2
obiekt na wynajem - Warszawa, Śródmieście

obiekt na wynajem

Warszawa, Śródmieście
  324,00 m2 67,00 zł/m2

Napisz do nas

Proszę wypełnić to pole
Proszę wypełnić to pole
Proszę wypełnić to pole
Proszę wypełnić to pole
Trwa wysyłanie...

Ta strona wykorzystuje pliki cookies w celach statystycznych oraz w celu dostosowania naszych serwisów do indywidualnych potrzeb klientów. Zmiany ustawień dotyczących plików cookie można dokonać w dowolnej chwili modyfikując ustawienia przeglądarki. Korzystanie z tej strony bez zmian ustawień dotyczących cookies oznacza, że będą one zapisane w pamięci urządzenia.

rozumiem