Warszawa, Mokotów

Obiekt na wynajem

Szczegóły oferty

Warszawa, Mokotów, dobra komunikacja,
do wynajęcia atrakcyjne powierzchnie biurowe oraz pod działalność edukacyjną, medyczną, lub inną usługową.

Lokal znajduje się na pierwszym piętrze budynku, ma też bezpośrednie wejście od głównej ulicy.
Powierzchnia spełnia wymogi pod edukację, usługi medyczne, beauty.

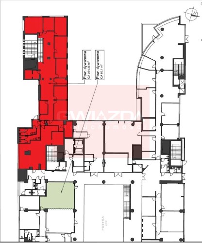
Dostępne są dwa moduły na piętrze pierwszym 364 mkw. netto oraz 384 mkw. netto.
Przy dłuższej umowie najmu właściciel oferuje zachęty finansowe.
Do lokalu przynależny taras o powierzchni 20 mkw.

Jeden z lokali jest w dobrym stanie (364 mkw. netto) - duża ilość doświetlonych gabinetów, powierzchnia praktycznie nie używana przez poprzedniego najemcę.
Druga powierzchnia wymaga remontu (384 mkw. netto).
Powierzchnie mogą również być dostosowane do potrzeb najemców.
Wysokość pomieszczeń - ponad 3 metry.
Nośność stropu - 300 kg/mkw.

Powierzchnie umożliwiają dowolną aranżację przestrzeni, zgodnie z wymaganiami Klienta. W standardzie m.in. klimatyzacja, podnoszona podłoga, BMS, kontrola dostępu, recepcja, ochrona.
Wentylacja została dodatkowo "wzmocniona", dopasowana do usług edukacyjnych.
Dostępna jest winda towarowa.

Koszt najmu 16 Euro/mkw. plus eksploatacja 28 zł/mkw., powierzchnia wspólna 6,68%.

Współczynnik miejsc parkingowych 1:90. Koszt miejsca garażowego 150 Euro/miejsce.

Współczynnik powierzchni wspólnej dla budynku wynosi 12%.

Minimalny okres najmu to trzy lata.

Zdjęcia i plan pochodzą z lokalu, który nie wymaga remontu.

Nota prawna

Opis oferty zawarty na stronie internetowej sporządzany jest na podstawie oględzin nieruchomości oraz informacji uzyskanych od właściciela, może podlegać aktualizacji i nie stanowi oferty określonej w art. 66 i następnych K.C.
Symbol oferty BW-14532
Powierzchnia 364,00 m²

Podobne oferty

obiekt na wynajem - Warszawa, Wola, Młynów

obiekt na wynajem

Warszawa, Wola, Młynów
  400,00 m2 50,00 zł/m2
obiekt na wynajem - Warszawa, Mokotów, Dolny Mokotów

obiekt na wynajem

Warszawa, Mokotów, Dolny Mokotów
  350,00 m2 58,00 zł/m2
obiekt na wynajem - Warszawa, Śródmieście

obiekt na wynajem

Warszawa, Śródmieście
  324,00 m2 67,00 zł/m2
obiekt na wynajem - Warszawa, Ochota

obiekt na wynajem

Warszawa, Ochota
  475,00 m2 63,00 zł/m2

Napisz do nas

Proszę wypełnić to pole
Proszę wypełnić to pole
Proszę wypełnić to pole
Proszę wypełnić to pole
Trwa wysyłanie...

Ta strona wykorzystuje pliki cookies w celach statystycznych oraz w celu dostosowania naszych serwisów do indywidualnych potrzeb klientów. Zmiany ustawień dotyczących plików cookie można dokonać w dowolnej chwili modyfikując ustawienia przeglądarki. Korzystanie z tej strony bez zmian ustawień dotyczących cookies oznacza, że będą one zapisane w pamięci urządzenia.

rozumiem