Warszawa, Mokotów

Obiekt na wynajem

Szczegóły oferty


Warszawa, Mokotów, metro Wilanowska, nowoczesny budynek biurowy.

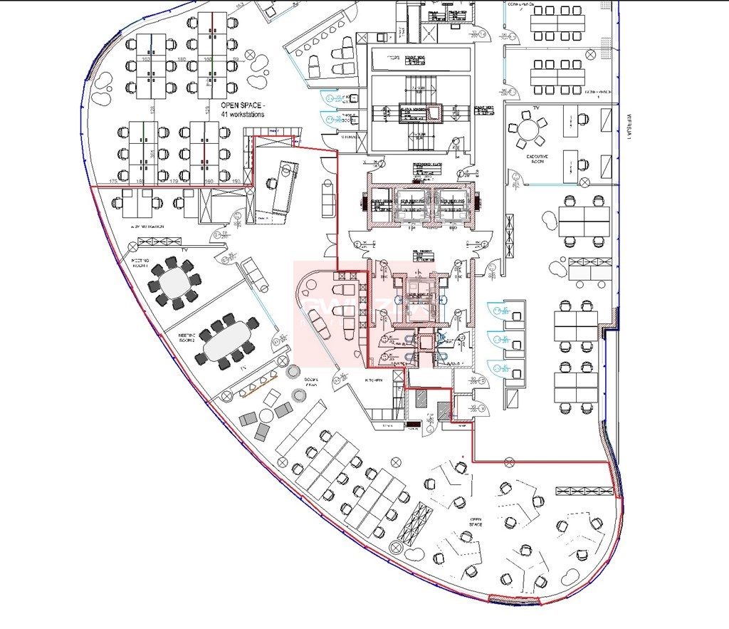
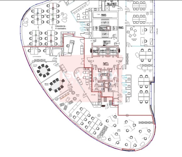
Do wynajęcia ładna powierzchnia biurowa 314 mkw., na piętrze piątym.

Biuro podzielone na, recepcję, trzy pokoje plus otwarta przestrzeń, pomieszczenie socjalne.
łazienki w części wspólnej.

Standard wykończenia:

- podniesione podłogi
- podwieszane sufity
- wykładzina antystatyczna
- uchylne okna
- okablowanie strukturalne
- klimatyzacja z termostatem
- nowoczesne rozwiązania telekomunikacyjne
- oświetlenie nowej generacji
- możliwości dowolnej aranżacji
- Centralny System Zarządzania
- dostępność budynku 24 h/dobę
- trzy windy szybkobieżne
- zasilanie z dwóch niezależnych źródeł energii elektrycznej.
- własne pomieszczenie socjalne
- toalety znajdują się w części wspólnej.

Koszt najmu 16,9 Euro/mkw. plus eksploatacja 27,50 zł/mkw. Euro/mkw.

Koszt miejsca parkingowego naziemnego 400 zł, parking podziemny 500 zł za miejsce.

Powierzchnia wspólna 10% (w niej znajdują się łazienki).
 

Nota prawna

Opis oferty zawarty na stronie internetowej sporządzany jest na podstawie oględzin nieruchomości oraz informacji uzyskanych od właściciela, może podlegać aktualizacji i nie stanowi oferty określonej w art. 66 i następnych K.C.
Symbol oferty BW-14546
Powierzchnia 314,00 m²

Lokalizacja

Podobne oferty

obiekt na wynajem - Warszawa, Wola, Młynów

obiekt na wynajem

Warszawa, Wola, Młynów
  400,00 m2 50,00 zł/m2
obiekt na wynajem - Warszawa, Mokotów, Dolny Mokotów

obiekt na wynajem

Warszawa, Mokotów, Dolny Mokotów
  350,00 m2 58,00 zł/m2
obiekt na wynajem - Warszawa, Śródmieście

obiekt na wynajem

Warszawa, Śródmieście
  324,00 m2 67,00 zł/m2
obiekt na wynajem - Warszawa, Śródmieście

obiekt na wynajem

Warszawa, Śródmieście
  305,00 m2 73,00 zł/m2

Napisz do nas

Proszę wypełnić to pole
Proszę wypełnić to pole
Proszę wypełnić to pole
Proszę wypełnić to pole
Trwa wysyłanie...

Ta strona wykorzystuje pliki cookies w celach statystycznych oraz w celu dostosowania naszych serwisów do indywidualnych potrzeb klientów. Zmiany ustawień dotyczących plików cookie można dokonać w dowolnej chwili modyfikując ustawienia przeglądarki. Korzystanie z tej strony bez zmian ustawień dotyczących cookies oznacza, że będą one zapisane w pamięci urządzenia.

rozumiem