Warszawa, Ochota

Obiekt na wynajem

Szczegóły oferty

Bliska Ochota, Ul. Grójecka,

Do wynajęcia biuro na piętrze pierwszym w budynku biurowo - apartamentowym.

Opis lokalu:

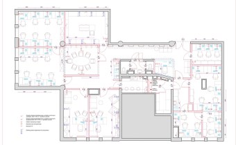
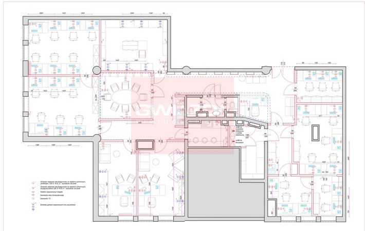
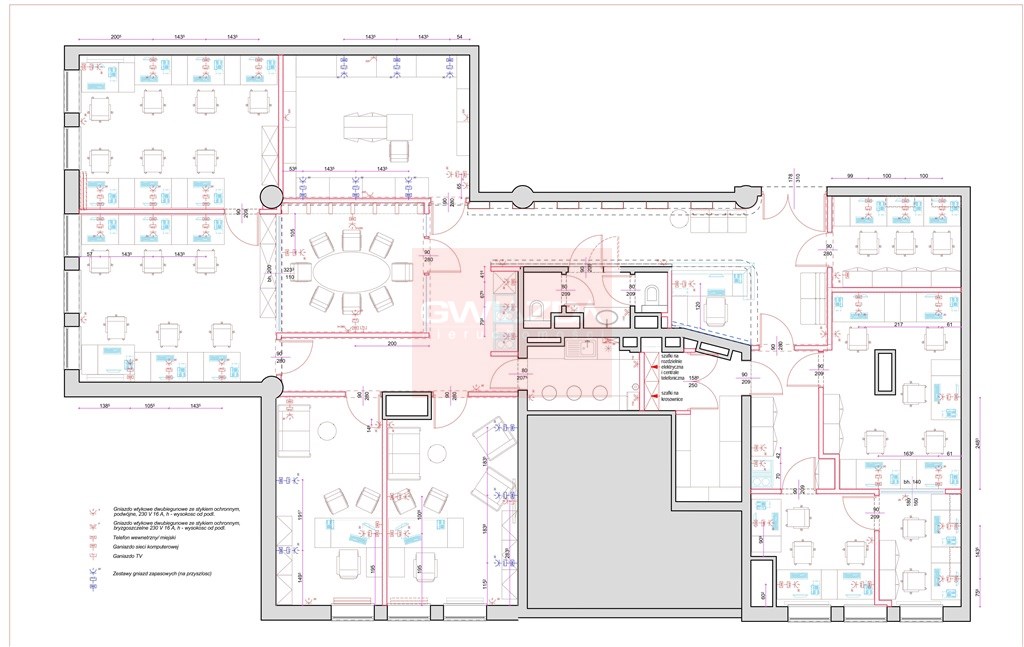
  • Powierzchnia: 251 m²
  • Piętro: 1
  • Wysokość pomieszczeń: od 3,15 m do 3,65 m (całość z podwieszanymi sufitami)
  • Układ pomieszczeń:
  • 7 pomieszczeń biurowych (wydzielonych ściankami działowymi)
  • 2 sale konferencyjne
  • osobna kuchnia
  • 2 łazienki
  • magazyn / serwerownia

Lokal jest częściowo umeblowany, posiada system kontroli dostępu oraz system przeciwpożarowy.

Standard wykończenia:

  • Wysoki standard – reprezentacyjne wejście do lokalu
  • Klimatyzacja w całym biurze
  • Wykładzina dywanowa w pokojach biurowych, płytki w kuchni i łazienkach
  • Drewniane okna zapewniające doskonałe doświetlenie wnętrz
  • W budynku: winda z poziomu garażu, podjazd dla osób niepełnosprawnych, ochrona i monitoring 24/7

Lokalizacja:

Biuro znajduje się w doskonałym punkcie komunikacyjnym – szybki dojazd do centrum i pozostałych dzielnic Warszawy.

W pobliżu:

  • WKD Warszawa Ochota
  • Dworzec kolejowy Warszawa Ochota SKM / KM
  • Dworzec Zachodni
  • Przystanki tramwajowe i autobusowe

Warunki najmu:

  • Czynsz najmu: 18 000 zł / miesiąc
  • (w cenie 2 miejsca postojowe w garażu podziemnym)
  • Dodatkowo płatne: media i opłaty eksploatacyjne (wg comiesięcznego rozliczenia Wspólnoty)
  • Kaucja: 2-miesięczny czynsz
  • Minimalny okres najmu: 2 lata
  • Właściciel: spółka (faktura VAT)

Nota prawna

Opis oferty zawarty na stronie internetowej sporządzany jest na podstawie oględzin nieruchomości oraz informacji uzyskanych od właściciela, może podlegać aktualizacji i nie stanowi oferty określonej w art. 66 i następnych K.C.
Symbol oferty BW-14488
Powierzchnia 250,00 m²

Podobne oferty

obiekt na wynajem - Warszawa, Wola, Młynów

obiekt na wynajem

Warszawa, Wola, Młynów
  400,00 m2 50,00 zł/m2
obiekt na wynajem - Warszawa, Śródmieście

obiekt na wynajem

Warszawa, Śródmieście
  332,00 m2 69,00 zł/m2
obiekt na wynajem - Warszawa, Mokotów

obiekt na wynajem

Warszawa, Mokotów
  340,00 m2 40,00 zł/m2
obiekt na wynajem - Warszawa, Mokotów

obiekt na wynajem

Warszawa, Mokotów
  264,00 m2 58,00 zł/m2

Napisz do nas

Proszę wypełnić to pole
Proszę wypełnić to pole
Proszę wypełnić to pole
Proszę wypełnić to pole
Trwa wysyłanie...

Ta strona wykorzystuje pliki cookies w celach statystycznych oraz w celu dostosowania naszych serwisów do indywidualnych potrzeb klientów. Zmiany ustawień dotyczących plików cookie można dokonać w dowolnej chwili modyfikując ustawienia przeglądarki. Korzystanie z tej strony bez zmian ustawień dotyczących cookies oznacza, że będą one zapisane w pamięci urządzenia.

rozumiem