Warszawa, Śródmieście

Obiekt na wynajem

Szczegóły oferty

Rejon Dworca Centralnego.

Do wynajęcia powierzchnia biurowa 200 mkw. netto. na piętrze siódmym.

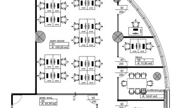
Biura są aranżowane zgodnie z potrzebami klientów. Aktualny podział jest widoczny na planie w tej ofercie.

Do dyspozycji najemcy: klimatyzacja, okablowanie, podnoszona podłoga, podwieszane sufity, BMS, kontrola dostępu, światłowód, tryskacze.

Koszt najmu wywoławczo 16,90 - 18,50 Euro/mkw. plus koszty eksploatacji 30 zł/mkw. zaliczkowo plus powierzchnia wspólna ok. 6-10 % (współczynnik zależny od wielkości wynajętej powierzchni.)
Koszt miejsca parkingowego podziemnego: 150 euro/m-c, miejsce naziemne: 90 euro/m-c.

Warunki najmu do negocjacji.

Właściciel proponuje zachęty obniżające czynsz bazowy w formie wakacji czynszowych.
 

Nota prawna

Opis oferty zawarty na stronie internetowej sporządzany jest na podstawie oględzin nieruchomości oraz informacji uzyskanych od właściciela, może podlegać aktualizacji i nie stanowi oferty określonej w art. 66 i następnych K.C.
Symbol oferty BW-14482
Powierzchnia 200,00 m²

Podobne oferty

obiekt na wynajem - Warszawa, Włochy, Salomea

obiekt na wynajem

Warszawa, Włochy, Salomea
  485,00 m2 25,00 zł/m2
obiekt na wynajem - Warszawa, Mokotów

obiekt na wynajem

Warszawa, Mokotów
  340,00 m2 40,00 zł/m2
obiekt na wynajem - Warszawa, Mokotów

obiekt na wynajem

Warszawa, Mokotów
  264,00 m2 58,00 zł/m2
obiekt na wynajem - Warszawa, Wola

obiekt na wynajem

Warszawa, Wola
  265,00 m2 30,00 zł/m2

Napisz do nas

Proszę wypełnić to pole
Proszę wypełnić to pole
Proszę wypełnić to pole
Proszę wypełnić to pole
Trwa wysyłanie...

Ta strona wykorzystuje pliki cookies w celach statystycznych oraz w celu dostosowania naszych serwisów do indywidualnych potrzeb klientów. Zmiany ustawień dotyczących plików cookie można dokonać w dowolnej chwili modyfikując ustawienia przeglądarki. Korzystanie z tej strony bez zmian ustawień dotyczących cookies oznacza, że będą one zapisane w pamięci urządzenia.

rozumiem