Warszawa, Wola, Młynów

Obiekt na wynajem

Szczegóły oferty

Wola, rejon ul. Wolskiej.

Usytuowany w bezpośrednim sąsiedztwie przystanku tramwajowego biurowiec o łącznej powierzchni prawie 3300 m² to nowoczesny, pięciopiętrowy budynek, zaprojektowany według najnowszych standardów.

Obiekt jest przeszklony, klimatyzowany z nowoczesną, przestronną recepcją i w pełni wyposażonym centrum konferencyjnym.

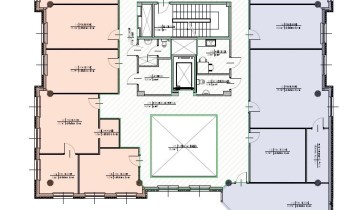
Do wynajęcia powierzchnia na piętrze pierwszym  536 mkw. netto oraz na piętrze trzecim 519 mkw. netto.

Istnieje możliwość wydzielenia mniejszej powierzchni - ok. 190 mkw. netto (plus 50 mkw. udziału w powierzchni wspólnej piętra) lub 233 mkw. netto. (plus 61 mkw. udziału w powierzchni wspólnej piętra).

Współczynnik powierzchni wspólnej to 9 %.

Bardzo korzystny współczynnik miejsc parkingowych - 1:30.

Najem biura 59 zł/mkw. plus koszty eksploatacyjne 28 zł/mkw.

Do negocjacji na etapie dalszych rozmów.



 

Nota prawna

Opis oferty zawarty na stronie internetowej sporządzany jest na podstawie oględzin nieruchomości oraz informacji uzyskanych od właściciela, może podlegać aktualizacji i nie stanowi oferty określonej w art. 66 i następnych K.C.
Symbol oferty BW-14493
Powierzchnia 233,00 m²

Podobne oferty

obiekt na wynajem - Warszawa, Włochy, Salomea

obiekt na wynajem

Warszawa, Włochy, Salomea
  485,00 m2 25,00 zł/m2
obiekt na wynajem - Warszawa, Mokotów

obiekt na wynajem

Warszawa, Mokotów
  340,00 m2 40,00 zł/m2
obiekt na wynajem - Warszawa, Mokotów

obiekt na wynajem

Warszawa, Mokotów
  264,00 m2 58,00 zł/m2
obiekt na wynajem - Warszawa, Wola

obiekt na wynajem

Warszawa, Wola
  265,00 m2 30,00 zł/m2

Napisz do nas

Proszę wypełnić to pole
Proszę wypełnić to pole
Proszę wypełnić to pole
Proszę wypełnić to pole
Trwa wysyłanie...

Ta strona wykorzystuje pliki cookies w celach statystycznych oraz w celu dostosowania naszych serwisów do indywidualnych potrzeb klientów. Zmiany ustawień dotyczących plików cookie można dokonać w dowolnej chwili modyfikując ustawienia przeglądarki. Korzystanie z tej strony bez zmian ustawień dotyczących cookies oznacza, że będą one zapisane w pamięci urządzenia.

rozumiem