Warszawa, Żoliborz

Obiekt na wynajem

Szczegóły oferty

Warszawa, Żoliborz, rejon ul. Powązkowskiej.

Do wynajęcia powierzchnia biurowa 114 mkw. plus 22 mkw. (udział w kuchni i łazience) łącznie 136 mkw.

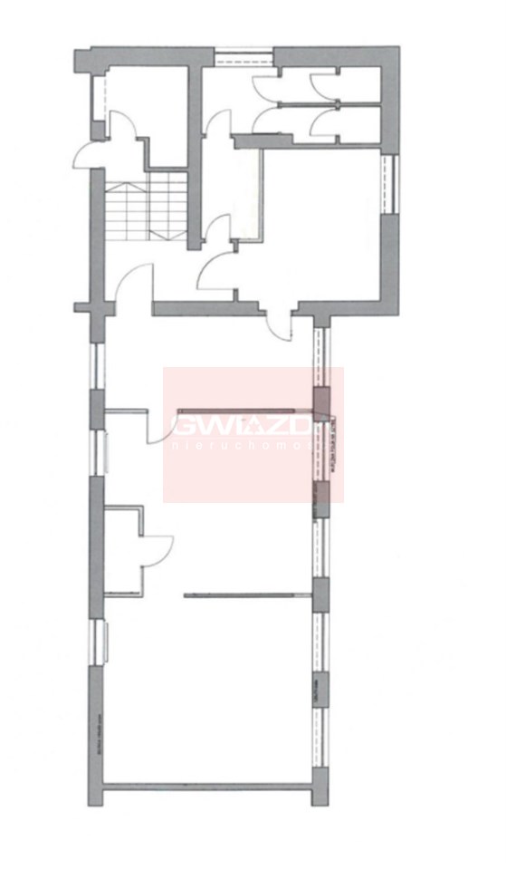
Biuro znajduje się na pierwszym piętrze budynku z wejściem z korytarza wspólnego, obok mieści się tylko jeden lokal biurowy.
Lokal składa się z dwóch otwartych gabinetów, sali recepcyjnej, sali konferencyjnej, serwerowni (plan w zdjęciach).
Na tym samym poziomie znajdują się toalety i kuchnia do dyspozycji Najemców (współdzielone z biurem księgowym, w którym pracują trzy osoby).

Standard wykończenia biura, industrialno loftowy, ściany wykończone gładzią gipsową, podłoga – beton zacierany, lampy oświetleniowe – sufitowe.
Media w lokalu: instalacja elektryczna oraz wodno-kanalizacyjna,  do lokalu doprowadzony jest internet,  instalacja alarmowa oraz czytniki wejścia do lokalu.

Biuro jest ogrzewane i posiada instalację klimatyzacji.

Koszt najmu 85 zł/mkw., plus opłaty administracyjne 25 zł/mkw., dodatkowo płatna energia elektryczna, internet. 

Do lokalu przypisane jest jedno miejsce parkingowe wyznaczone tabliczką z nazwą firmy, koszt miejsca 300 zł/miesięcznie.

Nota prawna

Opis oferty zawarty na stronie internetowej sporządzany jest na podstawie oględzin nieruchomości oraz informacji uzyskanych od właściciela, może podlegać aktualizacji i nie stanowi oferty określonej w art. 66 i następnych K.C.
Symbol oferty BW-14544
Powierzchnia 136,00 m²

Podobne oferty

obiekt na wynajem - Warszawa, Włochy, Salomea

obiekt na wynajem

Warszawa, Włochy, Salomea
  485,00 m2 25,00 zł/m2
obiekt na wynajem - Warszawa, Mokotów

obiekt na wynajem

Warszawa, Mokotów
  340,00 m2 40,00 zł/m2
obiekt na wynajem - Warszawa, Wola

obiekt na wynajem

Warszawa, Wola
  265,00 m2 30,00 zł/m2
obiekt na wynajem - Warszawa, Praga-Południe

obiekt na wynajem

Warszawa, Praga-Południe
  240,00 m2 56,00 zł/m2

Napisz do nas

Proszę wypełnić to pole
Proszę wypełnić to pole
Proszę wypełnić to pole
Proszę wypełnić to pole
Trwa wysyłanie...

Ta strona wykorzystuje pliki cookies w celach statystycznych oraz w celu dostosowania naszych serwisów do indywidualnych potrzeb klientów. Zmiany ustawień dotyczących plików cookie można dokonać w dowolnej chwili modyfikując ustawienia przeglądarki. Korzystanie z tej strony bez zmian ustawień dotyczących cookies oznacza, że będą one zapisane w pamięci urządzenia.

rozumiem