Warszawa, Ochota

Lokal na wynajem

Szczegóły oferty

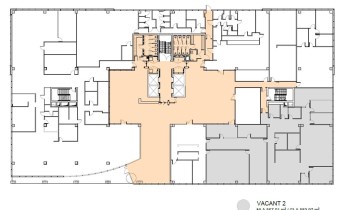
Warszawa, Ochota, rejon ul. Żwirki i Wigury, parter w budynku biurowym.

Możliwa działalność edukacyjna, medyczna, usługowa.

Do wynajęcia powierzchnia 734 mkw. netto. (765 mkw. brutto).


Istnieje możliwość wyburzenia ścianek g/k wewnątrz lokalu oraz wstawienia dodatkowego wejścia z zewnątrz.

Wysokość pomieszczeń do stropu ponad 3m, podłoga techniczna.

Nośność posadzki 500 kg/mkw.

Koszt najmu: czynszu 14,50 Euro/mkw. opłaty eksploatacyjne 28 zł/mkw.

Przewidziane są obniżki czynszu w formie wakacji czynszowych oraz budżet na fitout powierzchni ok. 100 Euro/mkw.



 

Nota prawna

Opis oferty zawarty na stronie internetowej sporządzany jest na podstawie oględzin nieruchomości oraz informacji uzyskanych od właściciela, może podlegać aktualizacji i nie stanowi oferty określonej w art. 66 i następnych K.C.
Symbol oferty LW-14550
Powierzchnia 734,00 m²

Podobne oferty

lokal na wynajem - Warszawa, Mokotów, Służewiec

lokal na wynajem

Warszawa, Mokotów, Służewiec
  566,00 m2 84,00 zł/m2
lokal na wynajem - Warszawa, Mokotów

lokal na wynajem

Warszawa, Mokotów
  615,00 m2 61,00 zł/m2
lokal na wynajem - Warszawa, Wola

lokal na wynajem

Warszawa, Wola
  798,00 m2 51,00 zł/m2
nowa oferta
lokal na wynajem - Warszawa, Wola

lokal na wynajem

Warszawa, Wola
  742,00 m2 73,58 zł/m2

Napisz do nas

Proszę wypełnić to pole
Proszę wypełnić to pole
Proszę wypełnić to pole
Proszę wypełnić to pole
Trwa wysyłanie...

Ta strona wykorzystuje pliki cookies w celach statystycznych oraz w celu dostosowania naszych serwisów do indywidualnych potrzeb klientów. Zmiany ustawień dotyczących plików cookie można dokonać w dowolnej chwili modyfikując ustawienia przeglądarki. Korzystanie z tej strony bez zmian ustawień dotyczących cookies oznacza, że będą one zapisane w pamięci urządzenia.

rozumiem