Warszawa, Mokotów, Czerniaków

Lokal na wynajem

Szczegóły oferty

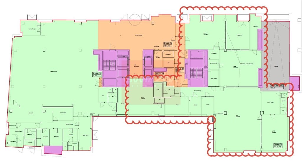
Mokotów, okolice ul. Sobieskiego/ Chełmskiej.

Do wynajęcia powierzchnia 1180 mkw. brutto na parterze nowoczesnego budynku biurowego kl.A. (jest to cała kondygnacja widoczna na załączonym planie, może zostać wydzielona jej część - w kolorze czerwonym,  ok. 660 mkw. brutto).

Budynek oferuje ok. 6500 mkw., pięć kondygnacji naziemnych w tym lokale handlowe na parterze.

Dostępnych jest 145 miejsc parkingowych na dwóch podziemnym kondygnacjach.

Standard budynku to m.in.: klimatyzacja, podwieszane sufity, podnoszone podłogi, okablowanie komputerowe, kable światłowodowe, uchylne okna. Dostępna jest także recepcja i ochrona budynku.

O wysokim standardzie budynku świadczy użycie najwyższej klasy materiałów budowlanych, wykończenia z ogromną dbałością.

Wysokość pomieszczeń na parterze wynosi aż 4 metry od podłogi podnoszonej do stropu.

Nośność stropu aktualnie to 3 kN/mkw., może zostać podniesiona w razie potrzeby.

Najem powierzchni 21,50 Euro/mkw. plus koszty eksploatacyjne 21,50 zł/mkw. plus media.

Dodatkowo płatna energia elektryczna.

Nota prawna

Opis oferty zawarty na stronie internetowej sporządzany jest na podstawie oględzin nieruchomości oraz informacji uzyskanych od właściciela, może podlegać aktualizacji i nie stanowi oferty określonej w art. 66 i następnych K.C.
Symbol oferty LW-14594
Powierzchnia 1 180,00 m²

Napisz do nas

Proszę wypełnić to pole
Proszę wypełnić to pole
Proszę wypełnić to pole
Proszę wypełnić to pole
Trwa wysyłanie...

Ta strona wykorzystuje pliki cookies w celach statystycznych oraz w celu dostosowania naszych serwisów do indywidualnych potrzeb klientów. Zmiany ustawień dotyczących plików cookie można dokonać w dowolnej chwili modyfikując ustawienia przeglądarki. Korzystanie z tej strony bez zmian ustawień dotyczących cookies oznacza, że będą one zapisane w pamięci urządzenia.

rozumiem